Descriere apartament
Agentia imobiliara MARIS oferim spre vanzare un apartament cu 2 camere confort 1 sporit, decomandat in cartierul Maurer Residence.Etaj 4 in bloc cu 10 etaje, dotat cu 2 lifturi, apartament nou, amenajat complet, insorit, panorama frumoasa.
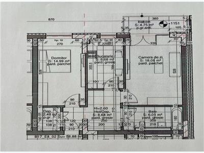
Compus din: sufragerie, dormitor, baie, bucatarie, hol, debara, balcon. Suprafata utila 59 mp + balcon 4 mp.
Boxa la subsol. Optional parcare langa bloc la pretul de 7.000 euro.
Agentia imobiliara MARIS nu percepe comision cumparatorului !
Informatii suplimentare si programare vizionari Luni - Vineri orele 9 - 18.
Alte oferte gasiti pe site-ul marisimobiliare ro
Caracteristici
- Zona: Libertatii
- Suprafata utila: 59 mp
- Confort: 1 sporit
- Compartimentare: decomandat
- Etaj: 4/9
- Numar Bai: 1
- Numar Balcoane: 1
- Numar Camere: 2
- An Constructie: 2025
Caracteristici generale
- Acces: Mixt
- Acces internet: Fibra optica
- Balcoane: Nu este inchis
- Bucatarie: Inchisa Da
- Calorifere: Da
- Clasa Energetica: C
- Destinatie: Locuinta
- Ferestre: PVC
- Geam baie: Nu
- Incalzire: Centrala proprie
- Interfon: Da
- Izolatii termice: Exterior
- Lift: Da
- Pereti: Faianta Lavabil
- Podele: Parchet Gresie
- Stadiu Finisare: Finalizat
- Strazi: Asfaltate
- Tip Bloc: Bloc
- Tip Structura Bloc: Cadre
- Usa intrare: Metal
- Utilitati: Canalizare Gaz CATV Telefon Internet Curent
- Vecinatati Spatii: Autobuz Zona comerciala Supermarket Fastfood Trafic Pietonal Intersectie circulata Benzinarie Piata Parc Restaurant/pub
- Vedere: Mixta













