Descriere apartament
Agentia imobiliara MARIS oferim spre vanzare un apartament cu 2 camere confort 1 decomandat in cartierul Maurer la etaj 4 din 8.Apartamentul se vinde mobilat complet si dotat cu electrocasnice.
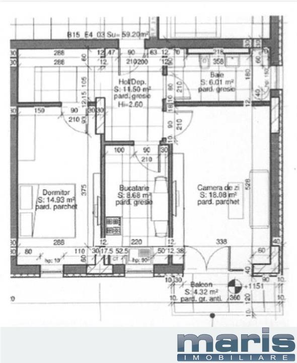
Compus din: sufragerie, dormitor, baie cu geam, bucatarie separata, hol mare, balcon deschis.
Suprafata utila 59 mp + balcon 4.5 mp.
Dispune de un loc de parcare langa bloc si boxa depozitare de 2.5 mp.
Agentia imobiliara MARIS nu percepe comision cumparatorului !
Informatii suplimentare si programare vizionari Luni - Vineri orele 9 - 19
Alte oferte gasiti pe marisimobiliare ro
Caracteristici
- Zona: Libertatii
- Suprafata utila: 59 mp
- Confort: 1 sporit
- Compartimentare: decomandat
- Etaj: 4/8
- Numar Bai: 1
- Numar Balcoane: 1
- Numar Camere: 2
- An Constructie: 2023
Caracteristici generale
- Acces: Mixt
- Acces internet: Wireless Fibra optica
- Balcoane: Nu este inchis
- Bucatarie: Da Inchisa Mobilata Utilata
- Calorifere: Da
- Clasa Energetica: B
- Destinatie: Locuinta
- Dotari: Frigider Boxa Masina rufe Aragaz
- Electrocasnice: Hota Aragaz Frigider Masina de spalat rufe
- Ferestre: PVC
- Geam baie: Da
- Incalzire: Centrala proprie
- Interfon: Da
- Izolatii termice: Exterior
- Lift: Da
- Mobilat: Modern Complet Stare Buna
- Pereti: Lavabil Faianta
- Podele: Gresie Parchet
- Servicii: Paza Administrare
- Stadiu Finisare: Finalizat
- Strazi: Asfaltate
- Tip Bloc: Bloc
- Tip Structura Bloc: Caramida
- Usa intrare: Metal
- Utilitati: Curent Apa Canalizare CATV Internet Gaz
- Vecinatati Spatii: Autobuz Zona comerciala Supermarket Fastfood Benzinarie Piata Hotel Parc Restaurant/pub Scoala/gradinita Trafic Pietonal
- Vedere: Mixta





















