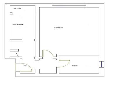
Descriere garsoniera
Agentia imobiliara MARIS oferim spre vanzare apartament cu 1 camera, confort 1 decomandat, situat in cartierul Tudor zona Fortuna, etaj 3 din 4.Apartament in stare foarte buna, renovat recent, se vinde mobilat si dotat cu electrocasnice.
Incalzire cu centrala termica, bloc izolat.
Zona foarte buna si pentru investitie / inchiriere, langa facultate, magazine, unitati de invatamant, mijloace de transport.
Informatii suplimentare si programare vizionari Luni - Vineri orele 9 -18 la telefon 0740.318.314 agent Gabriel Voda
Nu se percepe comision cumparatorului !
Alte oferte gasiti pe marisimobiliare.ro
Caracteristici
- Zona: Tudor Vladimirescu
- Suprafata utila: 30 mp
- Confort: 1
- Compartimentare: decomandat
- Etaj: 3/4
- Numar Bai: 1
- Numar Balcoane: 1
- Numar Camere: 1
- An Constructie: 1980
Caracteristici generale
- Acces: Mixt
- Acces internet: Fibra optica
- Balcoane: Termopan
- Bucatarie: Mobilata Utilata Da
- Calorifere: Da
- Clasa Energetica: C
- Destinatie: Locuinta
- Dotari: Masina rufe Aragaz
- Electrocasnice: Aragaz Frigider
- Ferestre: PVC
- Geam baie: Nu
- Incalzire: Centrala proprie
- Interfon: Da
- Izolatii termice: Exterior
- Lift: Nu
- Mobilat: Complet Modern Stare Buna
- Pereti: Faianta Lavabil
- Podele: Parchet Gresie
- Stadiu Finisare: Finalizat
- Strazi: Asfaltate
- Tip Bloc: Bloc
- Tip Structura Bloc: Cadre
- Usa intrare: Metal
- Utilitati: Curent Apa Canalizare Gaz CATV Telefon Internet
- Vecinatati Spatii: Hotel Central Restaurant/pub Centru universitar Scoala/gradinita Autobuz Zona comerciala Banca Supermarket Cinema Fastfood Piata
- Vedere: Spate











