Descriere apartament
EXCLUSIVITATE !!!Agentia imobiliara MARIS oferim spre vanzare apartament cu 2 camere, confort 1 decomandat, situat in cartierul 7 Noiembrie.
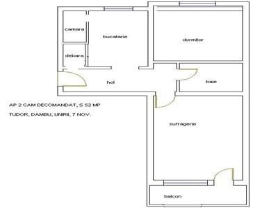
Apartament este la etajul 2 in bloc cu 4 etaje, constructie 1982, confort 1 decomandat, are suprafata utila 51 mp + balcon 4 mp.
Necesita renovare, dotat cu centrala termica proprie, tamplarie PVC cu geam termopan, parchet lemn.
Zona foarte buna si pentru investitie/inchiriere, la 15 minute de Centru - UMFST si spitale, magazine, piata de zi, unitati de invatamant, mijloace de transport.
Informatii suplimentare si programare vizionari Luni - Vineri orele 9 -18 la telefon 0740.318.314
Nu se percepe comision cumparatorului !
Alte oferte gasiti pe marisimobiliare.ro
Caracteristici
- Zona: 7 Noiembrie
- Suprafata utila: 51 mp
- Confort: 1
- Compartimentare: decomandat
- Etaj: 2/4
- Numar Bai: 1
- Numar Balcoane: 1
- Numar Camere: 2
- An Constructie: 1980
Caracteristici generale
- Acces: Mixt
- Acces internet: Cablu Fibra optica Wireless
- Balcoane: Termopan
- Bucatarie: Da Inchisa
- Calorifere: Da
- Clasa Energetica: C
- Destinatie: Locuinta
- Ferestre: PVC
- Geam baie: Nu
- Incalzire: Centrala proprie
- Interfon: Da
- Izolatii termice: Exterior
- Lift: Nu
- Pereti: Faianta Lavabil
- Podele: Parchet
- Stadiu Finisare: Finalizat
- Strazi: Asfaltate
- Tip Bloc: Bloc
- Tip Structura Bloc: Placi
- Usa intrare: Metal
- Utilitati: Curent Apa Canalizare Gaz CATV Telefon Internet
- Vecinatati Spatii: Autobuz Zona comerciala Banca Supermarket Fastfood Trafic Pietonal Intersectie circulata Benzinarie Parc Restaurant/pub Centru universitar Scoala/gradinita Piata
- Vedere: Mixta



